Bei dem wasserführenden Gussofen FONDIA des deutschen Traditionsunternehmens LEDA handelt es sich um einen in jeder Hinsicht aus der Masse herausstechenden Kaminofen. Seine fließenden Konturen und das unverwechselbare, wellenförmige Oberflächendesign, welches den Wellen nachempfunden ist, die Tropfen auslösen, die auf die Wasseroberfläche fallen, gepaart mit modernster Feuerungstechnik machen ihn zu einer vortrefflichen Wahl, um Ihrem Interieur eine besondere, individuelle Note zu verleihen. Grundsätzlich ist der FONDIA mit einer integrierten Wassertasche ausgestattet. Durch den Anschluss dieser an das zentrale Heizsystem lassen sich so selbst weit entfernte Räume mit Ihrem Kaminofen beheizen. Das Wärmeabgabeverhältnis des Kaminofens beträgt 55 / 45, d.h. dass rund 60 % der durch den FONDIA produzierten Wärme dem Wasserkreislauf und damit dem gesamten zu Objekt (Haus) zur Verfügung stehen. Der Rest wird als Strahlungswärme in den Aufstellraum abgegeben und erzeugt dort die typische wohlige Wärme, die nur ein Kaminofen erzeugen kann. Durch dieses Verhältnis wird das Risiko des Überheizens des Aufstellraumes deutlich reduziert und gleichzeitig die Energie optimal genutzt. Die Technik ist hervorragend für Gebäude mit Niedrigenergie-Standard geeignet und kann eine Solaranlage in der kalten Jahreszeit optimal ergänzen. Der Rauchrohranschluss des Schwedenofens befindet sich an der Rückseite.
Stellen Sie sich vor, Ihr warmes Wasser kommt aus Ihrem Kaminofen
Natürlich nicht direkt, sondern nur bildlich. Das herrliche Kaminfeuer erwärmt das kalte Wasser aus dem Pufferspeicher über den im Kaminofen integrierten Wasserwärmetauscher. Anschließend wird das erhitzte Wasser an den Pufferspeicher zurückgeschickt. Danach kann die Wärme im Haus dezentral entweder über den Heizkörper, über die Fußbodenheizung oder auch beim Baden oder Duschen genutzt werden. Zusätzlich zur Wärmeaufbereitung des Wassers gibt der Kaminofen eine wohlige Strahlungswärme an den Aufstellraum ab.
Merkmale
|
Nennwärmeleistung (direkt/wasserseitig) |
13 kW (7 kW / 6 kW) |
|
Abmessungen (HxBxT) |
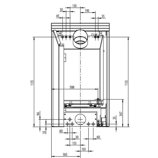
122,5 x 69,0 x 53,0 cm |
|
Gewicht |
385 kg |
|
Grundform |
eckig |
|
Sichtbereich Feuerraumtür (HxB) |
46,0 x 39,4 cm |
|
Material |
Gusseisen |
|
Rauchrohranschluss (Ø) |
180 mm |
|
Brennstoffe |
Holz (bis 33 cm Scheitlänge) |
Highlights
Große Sichtscheibe
Scheibenspülsystem
Externe Frischluftzufuhr
Design-Türgriff, Anschlag wechselbar
Türfunktion klappbar
Hervorragendes Abbrandverhalten und Flammenbild durch modernste Feuerungstechnik
Erfüllt alle Anforderungen 1. und 2. BImSchV (zusätzlicher Feinstaubfilter nicht erforderlich)
Elektronische Abbrandsteuerung (optional, mit Ledatronic, sh. Zubehör)
Technische Details
|
Wirkungsgrad |
> 80 % |
|
Für 24h Dauerbetrieb geeignet |
ja |
|
Frischluftstutzen (Ø) |
125 mm |
|
Rauchrohrstutzen |
|
|
Höhe bis Rohrmitte |
111 cm (Abgang hinten) |
|
Frischluftstutzen |
|
|
Höhe bis Rohrmitte |
9,4 cm (Abgang hinten) |
|
Abstand hinten bis Rohrmitte |
31,7 cm (Abgang unten) |
|
Abstand zu brennbaren Materialien |
|
|
Seitlich |
20 cm |
|
Hinten |
20 cm |
|
Vorn |
80 cm |
Daten für den Schornsteinfeger nach DIN EN 13384
|
Abgasmassenstrom |
12 g/s |
|
Abgastemperatur |
280 °C |
|
Erforderlicher Förderdruck |
0,14 mbar |
|
BImSchV Stufe 1 und 2 |
Erfüllt |
Weiterführende Informationen
Aufstell- und Bedienungsanleitung
Herstellererklärung
HINWEIS: Sperrgut mit Speditionsversand. Weitere Informationen hier.
Technische Änderungen und Irrtümer vorbehalten























Rezensionen
Es gibt noch keine Rezensionen.